53.35
RUB
О товаре
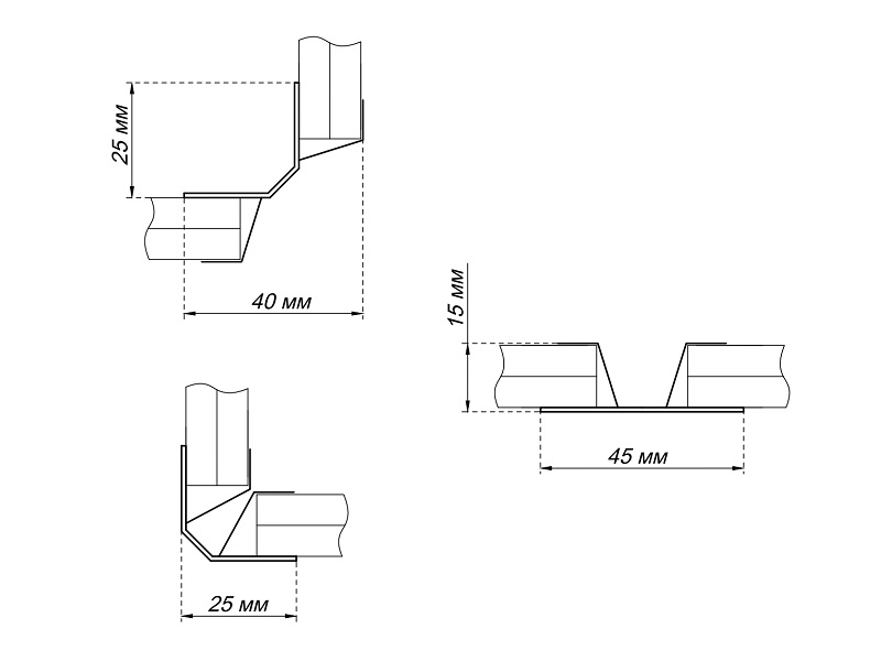
Угол универсальный Черный Н-100мм (90-135-180*)
Основные
Артикул
КА-1027712
Цвет
черный
Размеры
Высота, мм
100
Свойства и материалы
Основной материал
ПВХ
